profil | bauleitplanung

Vorbereitende und verbindliche Bauleitplanung
![]()
Bauleitplanung
Die Aufstellung und Fortschreibung der Flächennutzungspläne gehört zu den wichtigsten Aufgaben der Städte, Ämter und Gemeinden.
Veränderte Planungsziele und Rahmenbedingungen, neue städtebauliche Projekte oder eine Gemeindeneuordnung machen vielfach die Überarbeitung und Änderung von bereits rechtskräftigen Flächennutzungsplänen erforderlich.
Bebauungsplan „Gewerbegebiet Neu Boston 3“ der Stadt Storkow (Mark)
B-Plan für potenziellen Club-Standort Gleisdreieck Leipzig
FNP-Änderung für das Gewerbe in Fürstenwalde/Spree und Langewahl
Bebauungsplan Ehemaliges Kalksandsteinwerk in Storkow
Bebauungsplan S-Bahnhof Wartenberg
Flächennutzungsplan Schwielochsee
Flächennutzungsplan Byhleguhre-Byhlen
B-Plan Holländer Mühle Neuruppin
B-Plan B23 Zentrum Bahnhofsumfeld Blankenfelde
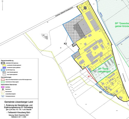
9. Änderung des FNP Löwenberger Land
B-Plan Gewerbegebiet an der A14 in Wittenberge
B-Planverfahren für den Ziegeleipark Mildenberg
zur Projektdatenbank
Sollten Sie eine gesuchte Leistung vermissen oder weitere Informationen wünschen sprechen Sie uns gerne an! Ihre Ansprechpartner
9. Änderung des FNP Löwenberger Land
Bebauungsplanung
FNP-Aufstellung und -Fortschreibung
![]()
Service | Arbeitshilfen
Die von uns im Auftrag der Länder erarbeiteten Arbeitshilfen für Planer_Innnen, die Projekte der Bauleitplanung berarbeiten. Auf den Projektseiten finden Sie die entsprechenden Links zum Download.
Arbeitshilfen und Leitfäden für das Land Brandenburg:
letzte Änderung: 06.12.2024
