23-09-Berlin-klunkerkranich.jpg
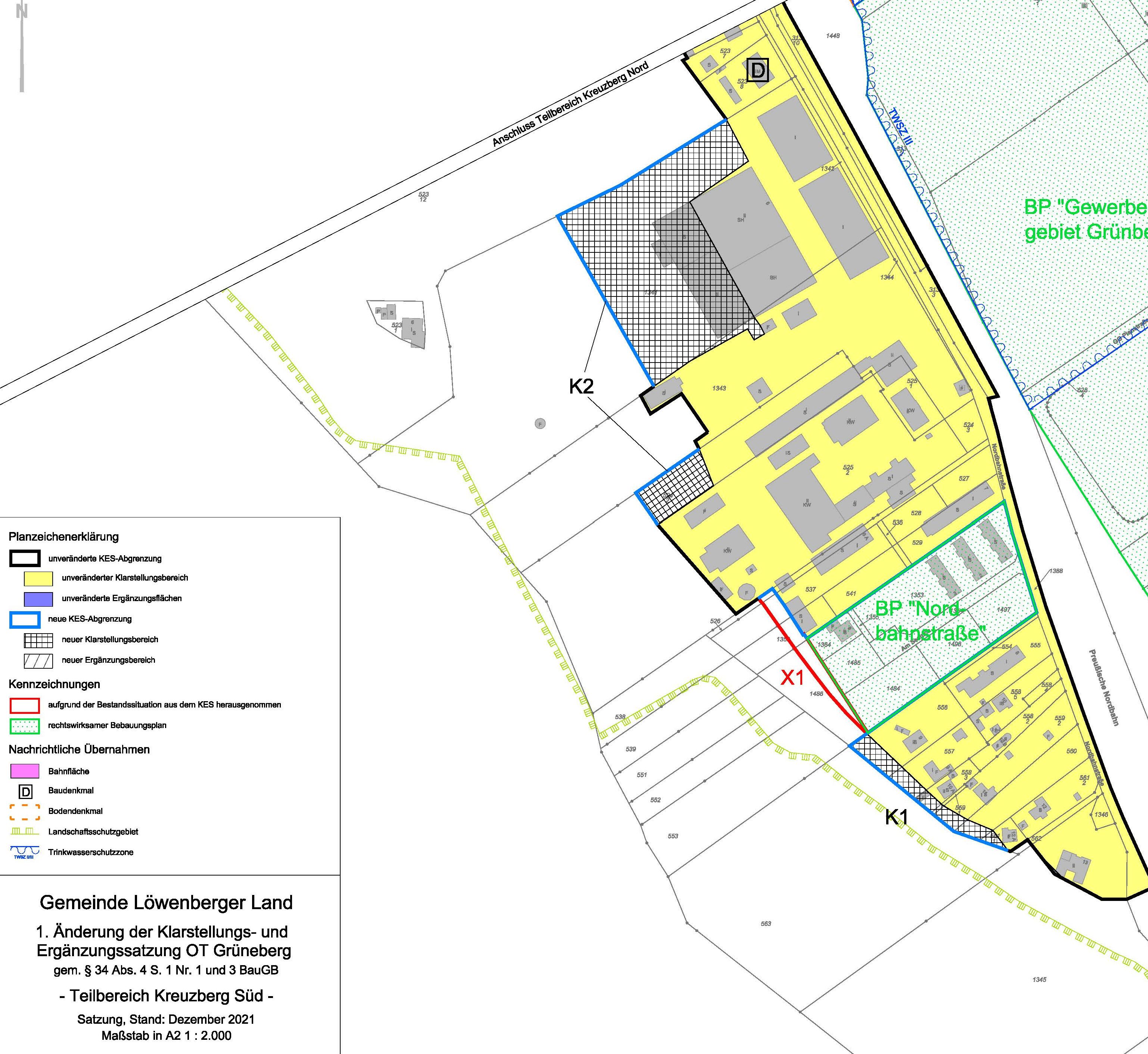
Drei Klarstellungs- und Ergänzungssatzungen , Löwenberger Land

Klärung der Entwicklungsmöglichkeiten nach §34 BauGB in den Randbereichen der traditionellen Dorflagen.


Bearbeitungszeitraum
2020
Projektmanager
Torsten Meß
Auftraggeber
Gemeinde Löwenberger Land
Leistungsort
Löwenberger Land

letzte Änderung: 06.12.2024