23-07HoffestDrohne_1920x390.jpg
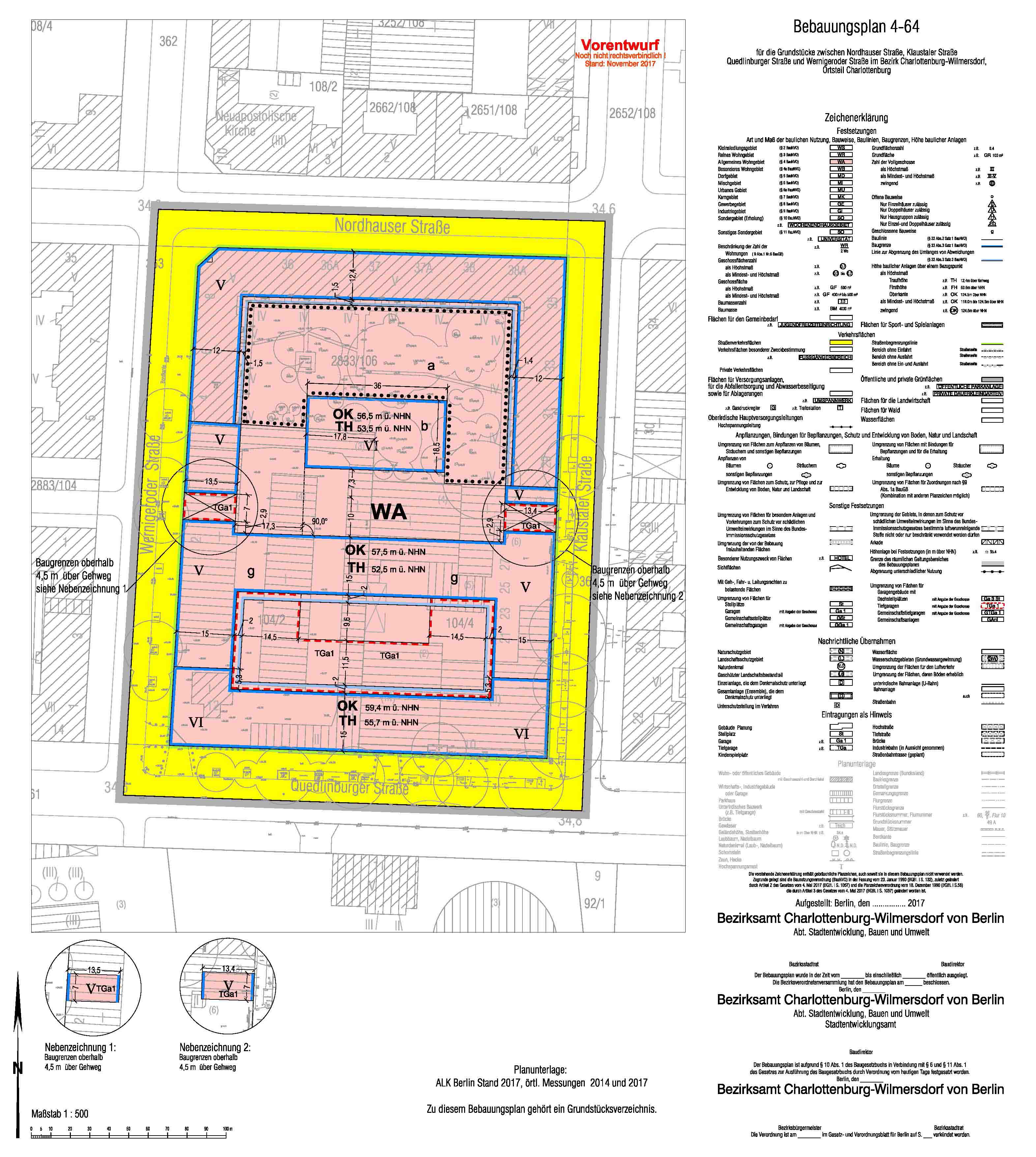
Quedlinburger Straße (Nord), Berlin-Charlottenburg

Blockrandschließung durch ein Wohnungsbauvorhaben mit einem Anteil geförderten Wohnungsbaus nach dem "Berliner Modell". Berücksichtigung eines unmittelbar benachbarten Tanklagers.


Bearbeitungszeitraum
seit 2016
Projektmanager
Andrea Becker
Auftraggeber
Bezirksamt Charlottenburg-Wilmersdorf
Leistungsort
Berlin

letzte Änderung: 29.01.2026